高低温低气压试验箱PY-E515高低温试验箱、高低温低气压试验箱、高低温交变湿热试验箱、高温老化试验箱是主要用于航空、航天、电子、科研、国防军工领域/光电、半导体、芯片领域和其它工业部门确定电工的电子科技产品(包括元器件、材料和仪器仪表)。在高低温低气压单项或同时作用下,进行贮存运输可靠性试验,并可同时对试件通电进行电气性能参数的测试。
1、节能设计
采用 PID+PWM 原理的 VRF(制冷剂流量控制)技术实现低温节能运行配备冷控制 PID 自动调节技术(在线性降温和低温恒温过程中,通过冷控制 PID 调节制冷输出量达到温度平衡,即制冷不制热、制热不制冷的“冷平衡”技术)。采用该模式的设计相较于传统冷热平衡模式可节能 30%以上。
2、独特的压力控制
设备压力控制采用电动比例阀,根据压力设定值与测量值自动调整比例阀开度, 以保持压力稳定。
电动比例阀可根据试验需求进行压力线性变化试验。
3、送风装置
设备出风口安装双层式可调百叶窗,可根据 9 点实测的温度调整箱内风量分配, 以实现较高的温度均匀度和偏差。
| GB/T 2423.1-2008 电工电子产品环境试验 第 2 部分: | 试验方法 试验 A:低温 |
| GB/T 2423.2-2008 电工电子产品环境试验 第 2 部分: | 试验方法 试验 B:高温 |
| GB/T 2423.21-2008 电工电子产品环境试验 第 2 部分: | 试验方法 试验 M:低气压 |
| GB/T 2423.25-2008 电工电子产品环境试验 第 2 部分: | 试验方法 试验 Z/AM:低温/ 低气压 |
| GB/T 2423.26-2008 电工电子产品环境试验 第 2 部分: | 试验方法 试验 Z/BM:高温/ 低气压 |
| GJB 150.2A-2009 军用装备实验室环境试验方法 第 2 部分: | 低气压试验 |
| GJB 150.3A-2009 军用装备实验室环境试验方法 第 3 部分: | 高温试验 |
| GJB 150.4A-2009 军用装备实验室环境试验方法 第 4 部分: | 低温试验 |
| GB/T 10592-2008 高低温试验箱技术条件 | |
| GB/T 10590-2008 高低温低气压试验箱技术条件 | |
| GB/T 5170.2-2008 电工电子产品环境试验设备基本参数检定方法 温度试验设备 | |
| GB/T 5170.10-2008 电工电子产品环境试验设备检验方法 高低温低气压试验设备 | |
1、温度范围 -30℃~+100℃
2、温度分辨率 ±0.01℃
3、 温度波动度 ≤±0.5℃
4、温度均匀度 ≤2.0℃(常压、空载,温度稳定后测得)
5、温度偏差 ≤±2.0℃(常压、空载,温度稳定后测得)
6、升温速率 +25℃~+100℃≥1℃/min,空载,全程平均
7、降温速率 +25℃~-30 ℃≥1℃/min,空载,全程平均
8、湿度范围 20%~98%R.H,+20℃~+85℃
9、湿热范围图

10、湿度分辨率 0.1%R.H
11、湿度偏差 常压、空载、恒定状态:≥75%R.H 时:≤±3%RH;<75%R.H 时:≤±5%RH
12、压力范围 常压 ~ 30KPa(可选配 200KPa 正压装置)
13、压力偏差 ≥20kPa 时:≤±1kPa;2~20kPa 时:≤±5%;
14、降压时间 常压~30kPa≤60min(空载、箱内干燥)
15、压力恢复速率 ≤10 KPa /min
16 压力-高度表 见图。

17、噪音 ≤70dB(A 声级,距离设备大门 1m 处测量) 降噪方案:
1、主要噪音源如压缩机等加装减振弹簧和减振垫,可实现降低噪音并降低因振动对设备的破坏因素,延长设备使用寿命。冷冻管道采用卡夹固定,有效减少振动
2、制冷机组内壁帖合优质吸音棉,可有效降低制冷机组噪音效果。
3、压缩机与管道连接外加装避振环
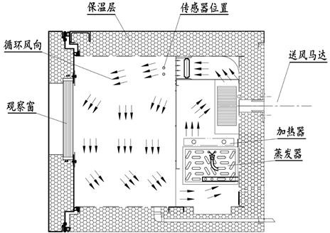
1、图示(C 型送风)

2、温湿度控制
试验箱运行时,控制器驱动循环风机运转,循环风机带动叶轮转动,叶轮驱动
试验空间内的气体往空气调节通道一侧运动,由此造成试验空间内叶轮出风口一侧 的正压和回风口一侧的负压,在叶轮出风口一侧正压和回风口一侧负压的共同作用 下,试验空间内气体经回风口挡板通风孔流入空气调节通道,并经加热器、蒸发器 或加湿器的处理后,经叶轮驱动并经出风口挡板通风孔均匀地流入试验空间,实现 试验空间温度场、湿度场的均匀调节,最后经由回风口挡板通风孔流入空气调节通 道,进入下一个气体循环过程。气体循环过程是一个连续的过程。
控制器根据试验箱设定的温度、湿度和通道挡板出风口处温度、湿度传感器检 测到的温度值、湿度值,对加湿器的加湿量进行 PID 调节,并根据需要对制冷量或加热量进行 PID 调节,从而实现试验空间的温度场、湿度场的均匀、稳定。
1、箱体结构(内承压)
1.1承压方式(内承压):采用优质 3mm 厚 SUS 304 不锈钢钢板作为内承压箱体, 外部包裹加强筋,其整体承压强度设计能力大于 10t/m²。
1.2内壁四周光滑、平整,无毛刺和凹坑,便于清洁,在使用过程中不会出现积水现象。
2、 外箱
采用 1.5mm 厚优质冷轧钢板制作,表面采用喷塑处理(外观可根据用户需求定制,用户需提供色卡或色号)。
3、内箱
3.1 SUS304 不锈钢材料制作,厚度 3.0mm,外侧加强筋采用 3mm 优质冷轧钢板折弯成型;
3.2 所有焊缝采用 TIG 连续满焊焊接,焊接完成后进行加压加水测试,能够防凝露积水、滴水、防霉、防锈和防腐蚀
4、保温层
130mm 厚聚氨酯发泡+超细玻璃棉,耐燃防火,保温性能好。
5、箱门
5.1手动单开大门,门洞尺寸为 W500×H600mm,采用不锈钢迫紧式门锁;
5.2大门材料同箱体;
5.3采用实心硅橡胶密封条,整体成型的吸盘式硅橡胶密封条具有耐高低温,抗老 化,密封性能好,更换和调节方便等优点。
5.4防止低温试验时门框和门的边沿凝露或结霜,门框和门的边沿设置有电热除霜装置,箱内温度低于 13℃时自动开启;
6、观察窗
6.1大门上安装 1 套 4 层 100×100 mm(宽×高)真空自发热玻璃观察窗,设计在大门中央;
6.2电热镀膜具备防潮隔温、防结霜、防雾、防凝露功能,保证试验时能观察到试验箱内样品情况。
7、照明灯具
观察窗内置 1 套 LED 照明灯具,照明灯控制开关位于触摸屏控制器上。
8、样品架
8.1.设备标配 2 套 SUS 304 不锈钢样品架,用于放置被试产品;
8.2.样品架可拆卸,高度可调;
8.3.样品架单层承重≥30Kg;
9、测试供电
1.根据用户实际使用需求配置航空插件,给箱内产品进行供电,如下图:

2.航空插件具体规格由客户提供。
10、三色灯
箱体顶部安装 1 套三色报警灯(红色--报警;绿色--运行;黄色--待机)
12、排水孔
设备后下部设置废水排放口,用于排出压缩机接水盘和工作室的废水。
13、脚轮脚杯
设备底部安装四个万向脚轮及脚杯,方便移动及固定。
1、工作方式
风冷型机械压缩单级制冷系统。
2、压缩机
1 台国际知名品牌压缩机组成 1 套单级式制冷系统。(美国艾默生谷轮或日本日立静音涡旋压缩机)
3、制冷剂 R404A 环保制冷剂
4、冷凝器 风冷型,管翅式换热器
5、蒸发器 高效多段式亲水膜翅片蒸发器(兼除湿换热器)
6、其他零配件
干燥过滤器:丹麦丹佛斯 DML 系列
电磁阀:日本鹭宫 NEV 系列
膨胀阀:丹麦丹佛斯 TS 系列
7、制冷系统特点
7.1节能设计
7.1.1采用冷控制 PID 自动调节设计,即线性降温阶段和恒温阶段,通过冷控制 PID 调节制冷输出量达到温度平衡,实现制冷不加热,加热不制冷。
7.1.2传统低温恒温控制控制方式:
A)方法一:采用制冷压缩机启停控制温度,温度波动大、严重影响压缩机寿命,目 前已淘汰该技术;
B)方法二:制冷压缩机恒定运行+加热 PID 控制,采用制冷量与加热相抵消实现温度动态平衡,浪费了大量的电能);
7.1.3 采用 PID+PWM 原理的 VRF(制冷剂流量控制)技术实现低温节能运行配备冷控制 PID 自动调节技术(在线性降温和低温恒温过程中,通过冷控制 PID 调节制冷输出量达到温度平衡,即制冷不制热、制热不制冷的“冷平衡”技术):低温工作状态, 加热器不参与工作,通过 PID+PWM 调节制冷剂流量和流向,对制冷管道、冷旁通管道、热旁通管道三向流量调节,实现对工作室温度的自动恒定。此方式在低温工况下,可实现降低 30%的能耗。该技术基于斯波兰和鹭宫公司的快开式电磁阀,可适用于对不同制冷量要求时对制冷量进行平滑调节,即满足在不同降温速率要求时, 实现压缩机制冷量调节。
7.2.制冷工艺
A)在制冷系统设计中充分考虑了对压缩机的保护措施,如压缩机吸排气压力保护功能,该功能使压缩机的运行压力保持在正常压力范围内,避免压缩机超高压或超低压,以便延长压缩机的使用寿命。
B)在制冷系统管道焊接上采用氮气保护焊接方式,此方式避免了传统焊接方式造成在铜管内壁产生氧化物对制冷系统及压缩机的损害。
C)在制冷系统设计中充分考虑了机组运行时的减振措施,如压缩机安装弹簧减振器,同时在制冷管道上采用增加圆弧弯的方式,避免因运行振动和温度变化引起的管道变形和泄漏,从而提高整个制冷系统的可靠性。
7.3.压缩机吸气温度调节
自动调节压缩机回气温度,使压缩机的温度保持在正常范围内,避免压缩机过冷和 排气过热。
7.4.减振措施
A)压缩机:采用专用弹簧或专用胶垫对压缩机进行减振;
B)制冷系统:特种橡胶垫整体二次减振,制冷系统管路采用增加 U 型弯和弯头的方式避免因振动和温度的变化引起的铜管的变型,从而造成制冷系统管路破裂。C)较长的铜管采用管箍进行固定,防止压缩机启停或运输过程中导致铜管破裂。
7.5.降噪措施
制冷机箱采用波浪状的特种消音海绵吸音。
8.节能方案
8.1.控制系统采用制冷和加热双向 PID 调节,确保温度波动度在±0.2℃范围内时低温无加热输出,高温无制冷输出,较传统的单向加热 PID 调节相比,有效降低了系统的能耗,同时能自适应试样负荷的多少,当试样负荷较大时,加热 PID 输出会减少或无输出,系统会自动增加制冷量的输出,以平衡试样的发热;当试样减小时,加热 PID 输出会增加,系统将自动减小制冷量的输出,避免制冷量的过度浪费导致平衡加热的耗能;比较常规的制冷逻辑输出控制(即在固定的设定温度输出固定的制冷回路),加热来抵消多余制冷量的控制方法,经过理论和实际核对,实际节能达到≥30%;因为常规的冷热平衡算法来恒定温度时, 一般加热制冷会互耗能量 15%~20%,故两者相加损耗的能量达到 30%~40%。如果有些厂家设计不太合理,损耗的能量更大。
8.2.平衡控制方法:双向 PID 调节(即制冷不加热,加热不制冷)控制过程如下
A、加热 PID 控制方法

执行对象:加热器
当设定温度高过设备所处的环境温度时,系统判断,箱内要达到高过环境温度的高温,需要开启加热来平衡温度。加热器通过 PID 控制,无级调节加热输出比例
(0~100%),最终把实测温度精确控制在需要的设定温度点。
B、制冷 PID 控制方法

执行对象:制冷电磁阀(含主回路和卸载旁路)
当设定温度低过设备所处的环境温度时,系统判断,箱内要达到低过环境温度的低温,需要开启制冷来平衡温度。制冷系统回路通过 PID 控制,无级调节制冷输出比例(0~100%),最终把实测温度精确控制在需要的设定温度点。
系统安全运行保障:当 PID 调节制冷主回路输出比例很小(0~20%)时,由于制冷主回路流量少,会导致系统回气压力过低时,可能导致压缩机回油不畅或负压运行,长时间会导致压缩机损毁;因而我们设计了自动补偿回路,提高系统运行的可靠性,当系统回气压力低于设定值时自动开启热气和冷液补偿回路,确保系统安全稳定运行。
9、真空系统
9.1 系统组成
真空系统由真空泵、压力传感器、阀件及管道等组成
9.2 真空泵 配置 1 台(上海 FIRST 或浙江飞越真空泵)单级旋片式油封真空泵
9.3 真空测量
采用压力传感器测量压力,精度 0.1KPa
9.4 压力设定
通过抽气流量控制压力值,当低气压试验运行到设定的压力值时,压力变化会自动停止
9.5 压力控制
采用动态压力平衡法。该方法既指在真空系统连续工作的情况下控制系统根据设定之压力点通过 PID 自动运算输出的结果去控制真空比例阀的开度,调节其进气量的多少,最终达到一种动态平衡,并产生对应的曲线。
9.6 充气装置
设备配置自动/手动充气装置各 1 套,手动充气装置位于设备右侧。
10 空气调节
10.1 循环电机
10.1.1.磁流体传动+不锈钢长轴电机:
10.1.2.不锈钢长轴电机 2 台电机安装在箱体外,通过磁流体传动轴引入真空室并驱动离心风轮的旋转。
10.1.3.电机长轴采用新型磁流体密封传动件(风冷型)引入真空室,确保密封性能和传动可靠。
10.2 叶轮 多翼离心式叶轮,耐高低温不锈钢材质
10.3 传感器
温度:高精度 A 级 PT100 铂电阻传感器
湿度:电容式湿度传感器
压力:压力变送器
10.4 加热器
10.4.1.优质镍铬合金丝电加热器
10.4.2.由控制器输出信号通过 SSR 固态继电器实现高精度无触点开关控制
10.5 加湿器
10.5.1.外置锅炉加湿方法;
10.5.2.不锈钢铠装加热器(加热管);
10.5.3.加湿管控制方式:无触点等周期脉冲调宽,SSR(固态继电器);
10.5.4.水位控制装置,加热器防干烧装置。
10.5.5.补水方式:自动补水(配 100 加仑纯水机)
11 电气控制系统
11.1 控制方式
台湾威纶通 7 寸高精度电阻式触摸屏+PLC。
11.2 输入 2 组输入,支持干湿球 PT100、湿度变送器、压力变送器、热电偶等
11.3 精度 温度:0.01℃;湿度:0.1%R.H;压力:0.1KPa;时间:1min
11.4 运行模式
定值运行(手动模式)/程序运行(自动模式)
11.5 输出 PID+SSR/SCR 自动正逆双向同步输出
11.6 程序容量
11.6.1.系统容量 100 组程序*1000 段(可分别循环 1000 次),每组程序所需之段数可任意分割,各组程序可以自由互相连结,定值最大 999999 小时,时间设置模式为时/分/秒;
11.6.2.程序间可链接、程序可设外循环、程序分段可设内循环;
11.6.3.可重命名程序名,可调用、编辑历史程序
11.7 控制器功能
11.7.1.中/英文菜单,触摸屏方式输入。
11.7.2.密码保护:控制器操作界面具多重密码保护,不同密码保护具不同的操作权限,避免人为 误操作。
11.7.3.数据显示:实时显示设定温度/压力、实测温度/压力、循环数、总运行时间、运行程序编 号、运行程序名称、程序段号、段剩余时间等信息。
11.7.4.温度压力曲线:
无纸记录,内置记录程序,可方便自动生成温度压力曲线文件,并转存为 XLS 表格。能以数字和图形方式表述设定值和实际值、循环数、温度压力段、温度压力 值、时间等数据并转存为 XLS 表格上传至上位机(曲线以图片形式下载),支持数据导出。
11.7.5.完善的接口:
USB 口:可直接连接打印机,实现本地数据由线打印,由 USB 口可用 U 盘轻松进行历史曲线等数据导出。
以太网(TCP/IP)接口:无需专门配置服务器,可便接入公司电脑局域网络, 一个最多可连接并监控 16 台设备,方便快捷。
11.7.6.实时监控:
同时监视 1~16 台控制器运行状态,如监控控制器实时数据,信号点状态,实际输出状态等。
支持远程(外网)故障诊断,技术人员可通过网络,由客户协助留出端口,打 开 IE 浏览器,输入控制器的 IP 地址,即可进入登录界面选择操作或监视进行诊断
11.7.7.时序控制:
3 组时序输出控制接口,搭配 10 种之时间控制模式,可提供依程序设定要求的开关信号输出,时序所使用继电器能够耐受 5A 电流。试验箱带过载断电保护装置, 具备时序控制,报警断电功能。
11.7.8.故障显示:16 组故障报警输出,设备故障时自动切断电源并蜂鸣提醒,中英文人性化提示故障原因及排除方法。
11.7.9.预约启动:所有测试条件皆可设定预约自动启动及自动停止。
11.7.10.断电恢复:设备意外断电后,在恢复供电满足设备条件,系统能从断点恢复运行。
12 安全保护装置
12.1 制冷系统
(1)压缩机超压保护;
(2)压缩机过流保护;
(3)压缩机过热保护;
(4)排气超温保护;
(5)冷却水缺水欠压保护;
12.2 试验区
(1) 箱内外气压平衡装置;
(2)风机电机过热保护;
(3)控制器内部设定超温保护;
(4)独立式两级高低温保护
A、 通道高低温保护;
B、 可调式样品高低温保护。
12.3 电气系统
(1)电源欠逆相保护、漏电、短路、过压、欠压保护;
(2)系统过电流、欠压保护;
(3)控制回路限流保护;
(4)控制器自诊定故障显示;
(5)负载短路保护;
(6)安全接地线端子;
12.4 其他
(1)加热器超温、过载、短路保护;
(2)加湿缺水、干烧保护;
(3)真空泵电机过流、过载保护;
(4)故障提醒保护,设备故障时自动切断电源并蜂鸣提醒;
13 安装和使用条件
13.1 使用环境
环境温度 5℃~35℃,相对湿度≤85%,大气压力 80KPa~106KPa,周围无强烈震动和易燃易爆氛围存在。
13.2 电源
1.电压:380V±10%;
2.频率:50Hz±2Hz;
3.三相五线制,设备标配 1 条 5m 电缆线;
4.最大运行功率:7.5 kW
13.3气源 压力≥0.6MPa,接口 DN10,耗气量 0.2m³/min
13.4 自来水
加湿补水用,DN15 接口
1、工作室容积
150L(其他规格可选择、可定制)
2、工作室尺寸
W(宽)500 mm × H(高)600 mm × D(深)500 mm
3、设备外形尺寸
W(宽)800 mm × H(高)1700 mm × D(深)1700 mm(高度不含电机)
注:设备外形尺寸依据最终双方确认的图纸为准。高低温试验箱、冷热冲击试验箱、高低温冲击试验箱、高低温湿热试验箱、高低温交变试验箱、高低温交变湿热试验箱、快速温变试验箱、高温试验箱。
外观示意图:
